
常州市上能鍋爐有限公司***制造燃氣蒸汽鍋爐,功率范圍:1t/h~25t/h 適用燃料:天然氣 燃燒方式:微正壓燃燒 NOX排放:NOx≤30mg 熱效率:熱效率≥103%

燃氣蒸汽鍋爐就是以天然氣作燃料,在爐內燃燒放出來的熱量,加熱鍋內的水,并使其汽化成蒸汽的熱能轉換設備。水在燃氣蒸汽鍋爐(鍋筒)中不斷被爐里氣體燃料燃燒釋放出來的能量加熱溫度升高并產生帶壓蒸汽。由于水的沸點隨壓力的升高而升高,鍋是密封的,水蒸氣在里面的膨脹受限而產生壓力形成熱動力,嚴格的說鍋爐的水蒸氣是水在鍋筒中定壓加熱至飽和水再汽化形成的,作為一種能源廣泛使用。


燃氣蒸汽鍋爐全自動控制器,全中文液晶屏,人機界面,用戶只需輕松設定,鍋爐即能按用戶要求啟停、負荷調節、自動給水等全自動運作。鍋爐功能完備,保護齊全,操作簡單,安全可靠,具有自我診斷功能。鍋爐運行中一旦出現異常現象就自動中斷燃燒,發出聲光報警。



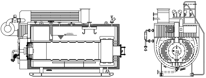
燃氣蒸汽鍋爐的爐膽空間大,儲存的蒸汽多,適應負荷能力強。設計合理的內置汽水分離器裝置,滿足用戶需用較高品質蒸汽的要求。爐體開設人孔、頭孔、手孔,便于對爐膽內部進行清理,使維修、養護極為方便。

燃氣蒸汽鍋爐安全設有多級聯鎖保護:壓力開關保護(高于設定壓力自動停機并報警)、低水位保護(鍋爐本體內水位低于警戒水位,自動切斷電源并報警)、安全閥保護(鍋爐壓力超過工作壓力,自動泄氣降壓),確保鍋爐在各種工況下萬無一失,安全到家。

燃氣蒸汽鍋爐有機組合的機電一體化外觀,精巧新穎、結構緊湊、少占空間,方便運輸、安裝。低氮蒸汽鍋爐采用新型隔熱保溫材料和***白色彩鋼板包裝,重量較輕,保溫性能好,美觀大方,不易銹蝕。

燃氣蒸汽鍋爐,出力足,負荷適應性強,長期運行更加穩定,

常州市上能鍋爐有限公司***制造燃氣蒸汽鍋爐,功率范圍:1t/h~25t/h 適用燃料:天然氣 燃燒方式:微正壓燃燒 NOX排放:NOx≤30mg 熱效率:熱效率≥103%
客戶如有需求燃氣蒸汽鍋爐,請聯系公司熱能***人士芮先生,聯系電話:0519-82052399,