
冷凝節能低氮燃氣蒸汽鍋爐_燃氣蒸汽鍋爐_常州市上能鍋爐有限公司

【1】配有***冷凝換熱器,實測熱效率達103%;
【2】選配分體式低氮燃燒器,氮氧化物排放可低于30mg;
【3】PLC可編程控制,輕松實現***集群控制和物流網智能控制;
【4】配置***空氣預熱器,燃料燃盡率高達100%。
低氮冷凝余熱回收燃氣蒸汽鍋爐適用范圍
功率范圍:1t/h~25t/h 適用燃料:天然氣 燃燒方式:微正壓燃燒
低氮解決方案:CAVALLO卡瓦諾變頻分體式低氮燃燒器 + FGR
NOX排放:NOx≤30mg 熱效率:熱效率≥103%
適用范圍:
1. 適用于所有制藥、造紙、煙草、印染、制衣等工業用戶;餐飲、醫院消毒、桑拿中心、洗衣中心等商用途徑;
2. 同時可為汽-水換熱器加熱采暖系統提供熱水、為溴化鋰吸收方式制冷機提供動力。
低氮冷凝余熱回收燃氣蒸汽鍋爐概述

上能超低氮冷凝余熱回收燃氣蒸汽鍋爐,采用***率低應力臥式濕背內燃煙氣二回程結構,配置***空氣預熱器和節能冷凝一體機;圓弧形對開爐門設計,運用大爐膛全混合燃燒和***螺紋煙管傳熱;首創低氮耦合,爐內獨有四級低氮燃燒技術,***抑制NOx生成;配置瑞士ABB變頻器,意大利CAVALLO卡瓦諾變頻分體式超低氮燃燒器,7英寸液晶觸摸屏與高性能PLC可編程控制器,實現鍋爐NOx≤30mg的超低排放標準。
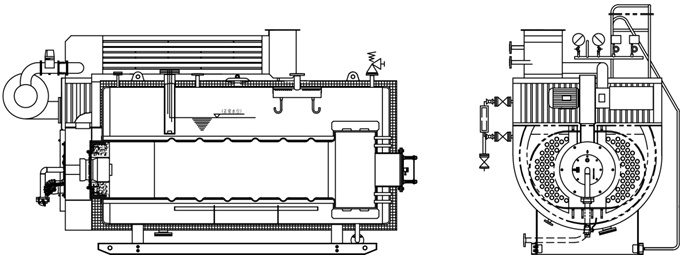
低氮冷凝余熱回收燃氣蒸汽鍋爐工作原理
鍋爐采用
大容積全波紋爐膽,濕背式跑道型回燃室,全螺紋煙管對稱且均勻布置在爐膽兩側。Cavallo卡瓦諾變頻分體式超低氮燃燒器提供燃料燃燒,噴出的火焰在爐膽內湍流燃燒。產生的高溫煙氣經回燃室折返,進入螺紋煙管,***換熱后,由前煙箱進入空氣預熱器,煙氣逆流換熱,加熱冷空氣;降溫的煙氣順流進入節能冷凝一體機,煙氣逆流通過錯排的硅鎂鋁合金翅片管擴展受熱面,回收煙氣潛熱和顯熱,預熱鍋爐給水溫度,熱量極限回收后的煙氣經煙囪排入大氣。
低氮冷凝余熱回收燃氣蒸汽鍋爐性能特點
上能超低氮冷凝余熱回收燃氣蒸汽鍋爐,采用***率低應力臥式濕背內燃煙氣二回程結構,將大量低溫受熱面布置在本體受壓區外,加大蒸汽空間提高蒸汽干燥度,降低鍋爐熱應力,避免鍋爐本體內冷凝腐蝕,從而提高本體熱效率。且注重頂層設計,將鍋爐本體、空氣預熱器、節能冷凝一體機、CAVALLO卡瓦諾變頻分體式超低氮燃燒器、智能控制系統進行***集成。
![]() |
管路系統簡單可靠,減少安裝占地面積,煙氣通道簡潔流暢。低溫冷凝極限回收燃料的同時,提升鍋爐***大熱效率高達103%,實現30mg超低氮排放。
【1】二回程結構設計
鍋爐優化設計為跑道型回燃室,二回程管束,有效增大蒸汽空間,提高蒸汽干燥度。
【2】超大波紋爐膽
爐水受熱均勻,水位、汽壓更加穩定;
增大燃燒空間,降低火焰溫度,實現NOx≤30mg的超低排放標準。
【3】意大利Cavallo卡瓦諾懸臂式風機及不銹鋼消音器
體積小、重量輕、風壓/風量穩定;增加了消音裝置,超長壽命、超低噪音。
【4】節能冷凝一體機
極限回收煙氣中的顯熱和水蒸汽凝結后的汽化潛熱,提高給水溫度,降低排煙溫度,節省燃氣費用,有效提升鍋爐熱效率高達103%;采用***ND鋼+硅鎂鋁合金纏繞復合翅片管,傳熱性能高,耐腐蝕性強。
![]() |
【5】空氣預熱器
低溫情況下可快速啟動,迅速加熱空氣;
換熱強度高,抗腐蝕性強;
雙向純逆流換熱模式,瞬間提高空氣溫度,加速燃燒,燃燒效率高達100%。
【6】Cavallo卡瓦諾變頻分體式超低氮燃燒器
意大利Cavallo卡瓦諾超低氮燃燒器,擁有低氧式、分布式、循環式、分級式四級燃燒技術;
結合煙氣再循環西門子FGR技術,實現30mg超低氮排放;
采用瑞士ABB變頻器,實現變頻比例控制燃燒,***節能。
【7】變頻給水
給水穩定;爐水波動小;蒸汽壓力穩定;蒸汽干燥度高
【8】PLC智能控制器
采用7英寸液晶顯示觸摸屏,與高性能可編程PLC控制器***匹配;
具備高低水位/超壓/超溫報警等聯鎖安全防護功能,可有效實時記錄鍋爐運行狀態,***監控鍋爐運行安全。
低氮冷凝余熱回收燃氣蒸汽鍋爐供熱系統圖
![]() |
低氮冷凝余熱回收燃氣蒸汽鍋爐技術參數

有關燃氣蒸汽鍋爐,冷凝式燃氣蒸汽鍋爐,低氮冷凝余熱回收燃氣蒸汽鍋爐的技術性能介紹可咨詢常州市上能鍋爐有限公司的網站